Bilocale in vendita

Milano, Via Lario - Isola
€ 325.000
2 locali 2 locali
65 Mq 65 Mq
1 bagno 1 bagno

Bilocale in vendita

Milano, Via Lario - Isola

Descrizione annuncio

IN TRATTATIVA

Via Lario

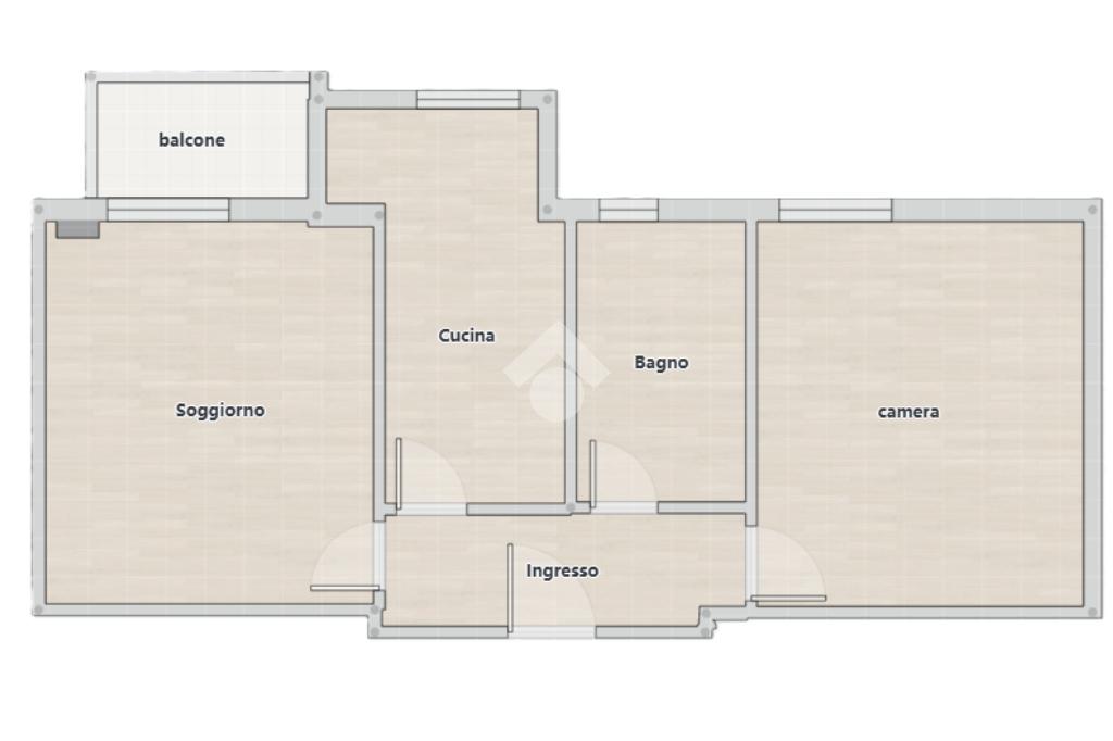
Nel quartiere Isola a pochi passi dalla linea MM3 e MM5 della metropolitana e a tutti servizi di prima necessità, proponiamo in esclusiva 2 Locali con cucina abitabile e balcone posto al 2° piano in stabile civile degli anni '50. Lo stabile è dotato di ascensore e servizio di portineria.

L'immobile è così composto: ingresso su corridoio, soggiorno con balcone, cucina abitabile, camera matrimoniale, bagno finestrato con vasca. Completa la soluzione un solaio di pertinenza.

L'appartamento si presenta in buone condizioni generali, la porta d'ingresso è blindata, gli infissi sono in legno/vetro singolo, la pavimentazione è in graniglia di marmo nella zona giorno ed in corridoio, grès porcellanato in cucina ed in bagno e parquet nella camera. Il riscaldamento è centralizzato ed è presente l'aria condizionata sia in soggiorno che in camera.

Ottima soluzione per un investimento e grazie alla metratura e alla planimetria si presta bene ad essere trasformato in un trilocale. Libero a rogito.

Mostra tutto

Nelle vicinanze

Trasporto pubblico Trasporto pubblico
Zara
Zara
190 m
Marche
Marche
550 m
Milano Porta Garibaldi superficie
Milano Porta Garibaldi superficie
920 m
Milano Porta Garibaldi passante
Milano Porta Garibaldi passante
980 m
Zara M3 M5
Zara M3 M5
180 m
Ricariche auto elettriche Ricariche auto elettriche
A2A Via Torquato Taramelli
420 m
A2A Palazzo della Regione
890 m
A2A Isola Digitale Pirelli Gioia
1,1 Km
BeCharge Milano Gae Aulenti
1,1 Km
NH Palazzo Moscova
1,3 Km
Scuole Scuole
Scuole
300 m
Istituto Tecnico Commerciale Gino Zappa
360 m
Istituto Scientifico Sperimentale Luigi Cremona
420 m
Scuola Primaria Fratelli Fabbri
640 m
Scuola Primaria Francesco Confalonieri
640 m
Farmacia Farmacia
Farmacia
160 m
Farmacia Caddeo
230 m
Parafarmacia Segrino
280 m
Farmacia Maccioni
440 m
Farmacia San Giovanni
510 m
Ospedali Ospedali
Humanitas San Pio X
260 m
Istituto Villa Marelli
550 m
Fatebenefratelli
1,5 Km
Ospedale dei Bambini "Vittore Buzzi"
1,9 Km
Poliambulatorio Cesare Pozzo
2,0 Km
Supermercati Supermercati
Spesa Si
110 m
Simply Market
380 m
International Store
410 m
Tigotà
470 m
Carrefour Market
500 m
Negozi Negozi
Luigi Fuga
30 m
Royal Market
160 m
Costa
160 m
Punto Caldo
330 m
Negozi
360 m
Bar Bar
Bar Rainbow
160 m
Bar
210 m
taiwan bubble tea
320 m
Blue Note
350 m
Millemisture
380 m
Ristoranti Ristoranti
Ristorante al Tronco
100 m
Pizzeria Alla Fontana
110 m
Osteria al Nove
130 m
Pizzeria alla Fontana
150 m
Old Wild West
160 m
Mostra tutto

Caratteristiche

Rif.:
61119310
Piano:
2 di 6 con ascensore (Piano medio)
Balconi:
1
Camere da letto:
1
Arredamento:
Assente
Condizionamento:
Autonomo
Mostra tutto
Prezzo Prezzo
€ 325.000
Rata mutuo Rata mutuo
€ 1.489 / mese
Spese annue Spese annue
€ 2.400
Proponi il tuo prezzoProponi il tuo prezzo

Classe Energetica

E
E
E
E
E
E
E
E
E
EP globale non rinnovabile:
200.14 kW h/m² anno
EP globale rinnovabile:
25.44 kW h/m² anno
EP invernale del fabbricato:
EP estiva del fabbricato:
Anno di costruzione:
1950
Riscaldamento:
Centralizzato
Tipo impianto:
A radiatori
Tipo alimentazione:
Altro

Ti interessa visionare l'immobile?

Fissa un appuntamento  Fissa un appuntamento

Richiedi informazioni

* Questi campi sono obbligatori

Calcola il tuo mutuo

Semplice e senza impegno
Anticipo

( % )
Mutuo

( % )

pochi semplici passi

inserisci i tuoi dati
Questionario completato
Grazie per aver richiesto un appuntamento senza impegno con un nostro Consulente del Credito e Assicurativo.

Hai inserito correttamente tutti i dati necessari e a breve riceverai una e-mail con un link da convalidare per inviare i tuoi dati.
Affiliato
A3G Sas
Via Garigliano, 5 20159 Milano (MI)

Il nostro staff


  • Pierluigi Dal Pozzo
    Collaboratore

  • Antonia Pesce
    Affiliata

  • Lodovica Razza
    Coordinatrice
Via Garigliano, 5 20159 Milano (MI)
Zona: Isola-Lagosta
Mostra su mappa
Affiliato
A3G Sas
Via Garigliano, 5 20159 Milano (MI)

2025 Tecnocasa Franchising S.p.A. - P. IVA 08365160152 - Via Monte Bianco 60/A 20089 Rozzano (MI). Ogni agenzia ha un proprio titolare ed è autonoma. Privacy policy | Policy utilizzo | Cookie policy